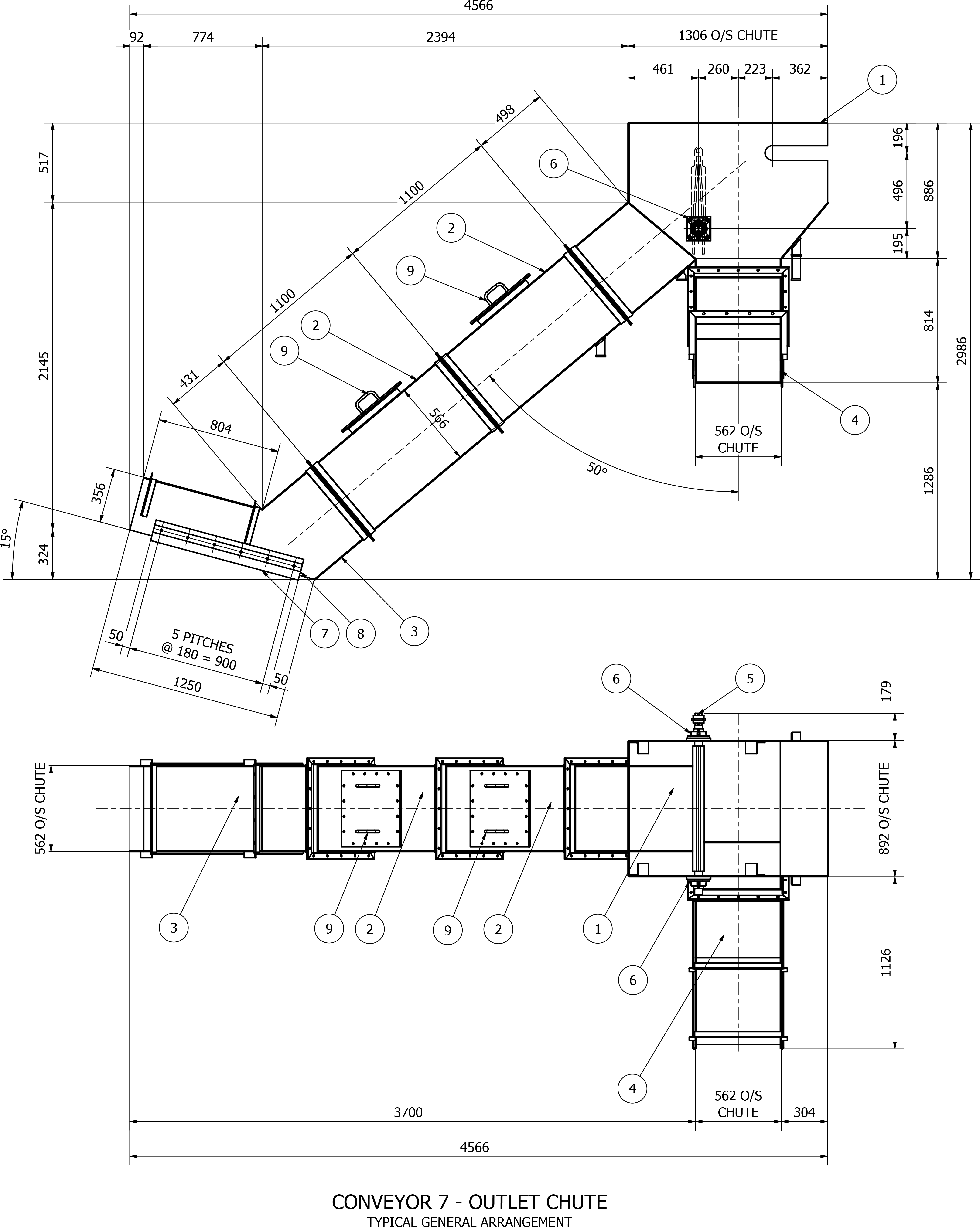
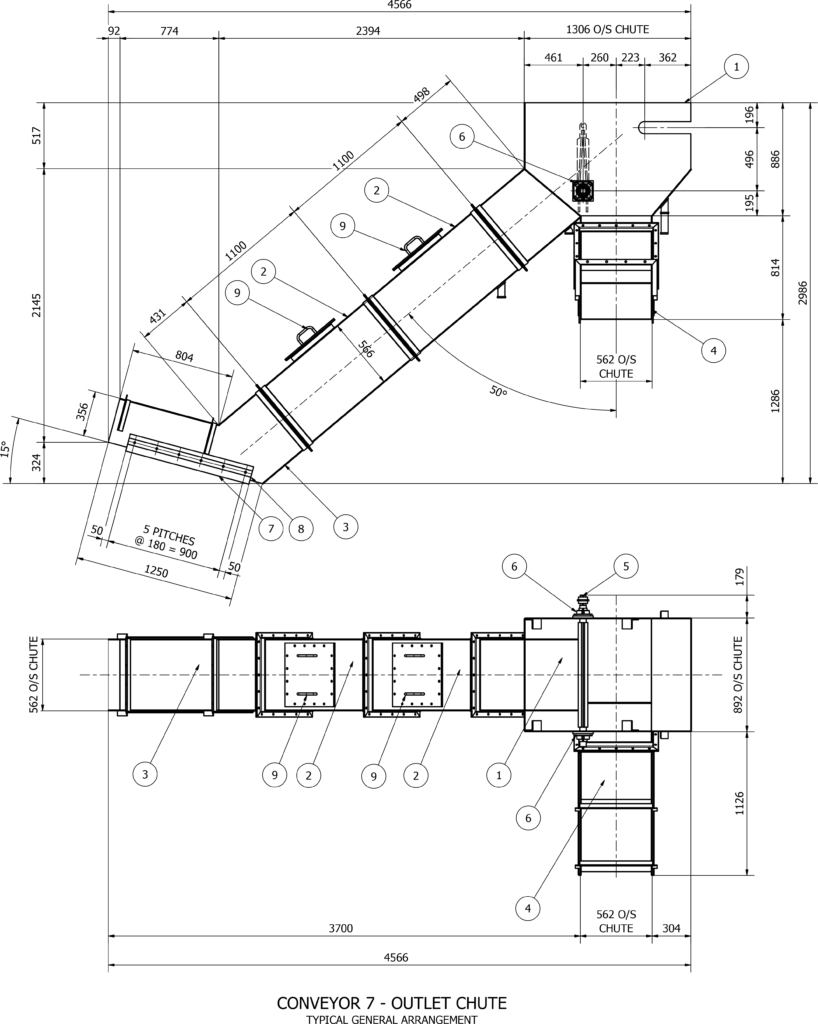
Project Objective

Design a Diverter Chute from feed conveyor no. 4 to stockpile conveyor no. 10 and rework conveyor no. 8

Project Design Requirements

Mechanical design of chute and flopper gate.