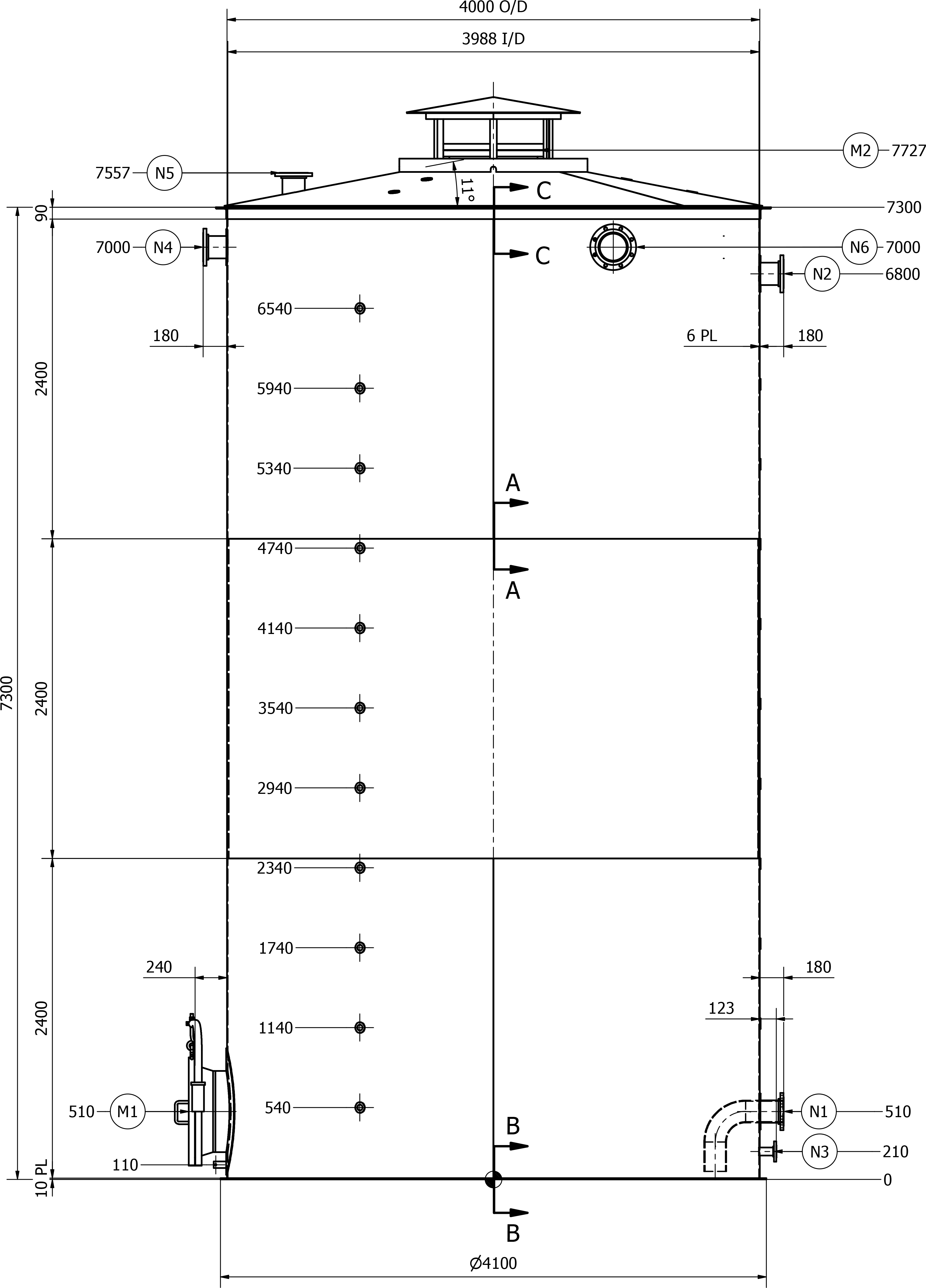
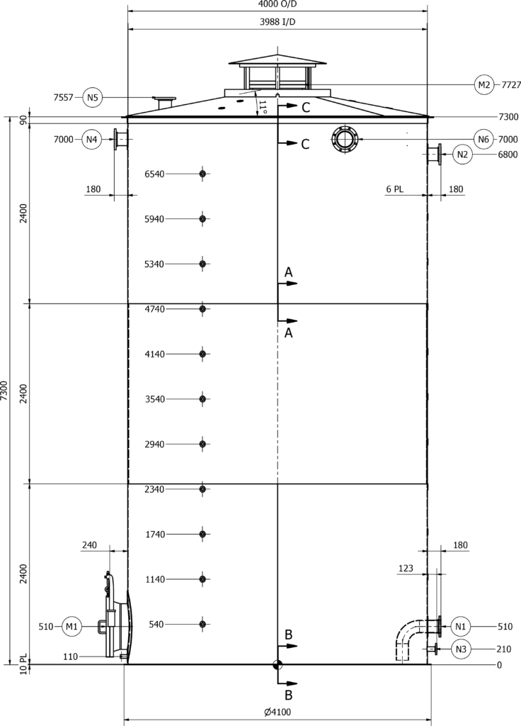
Project Objective Design and detail of Glycol Tank. Project Design Requirements Tank volume to be >85000l. Tank to be an atmospheric tank.