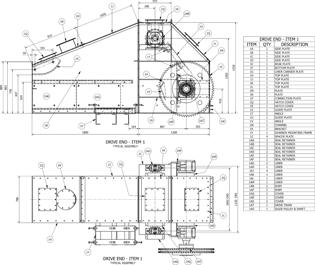
Project Objective

Duplicate and detail Redler Conveyor.

Project Design Requirements

A typical segmented design to be done as to make

Length adjustable to suit various site conditions.