Project Objective
Investigate and design an efficient manner in which to offload coal from side tipper into Tippler Chute.
Project Design Requirements
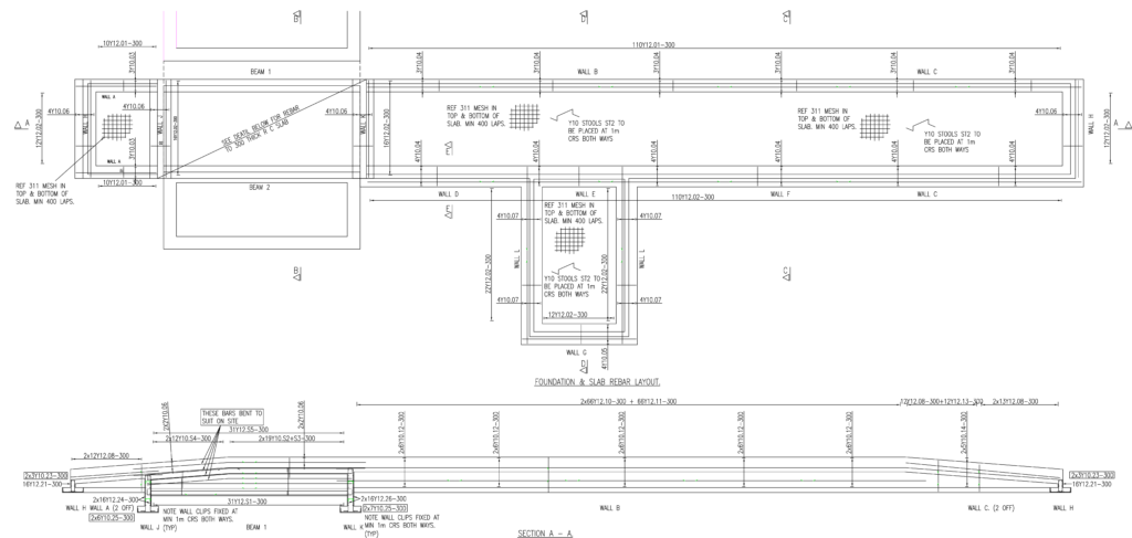
Design and detail concrete access ramps for Side Tipper.
Professional Services
Concrete and reinforcement design certified by in house design specialist as per statuary requirements.



